秦野市堀西第21 1号棟 神奈川県秦野市堀西 |2,880万円の新築一戸建て|株式会社ダイトー建設不動産
| 価格 | 2,880万円 ![]() |
||||
|---|---|---|---|---|---|
| 所在地 | 神奈川県秦野市堀西
この地域周辺の物件を見る |
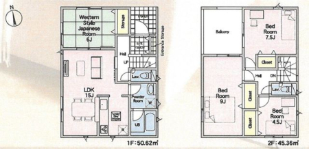
土地面積 | 132.99m² (40.22坪) | 建物面積 | 95.58u |
| 築年月 | 2025年12月築 | 間取り | 3LDK (LDK19.5/洋室8.5/洋室6/洋室5.2) | ||
| 交通 |
小田急小田原線 渋沢 徒歩20分
小田急小田原線 渋沢 バス2分 西小学校前 停歩8分 |
||||
| 特徴 |
|
|---|---|
| セールスコメント | 渋沢駅徒歩20分、通勤通学に便利♪ 駅バス2分も♪ 開放感ある両面道路♪ (設計/建設)住宅性能評価書付♪ 南向き、陽当たり通風良好な3LDK+WIC♪ 全居室収納付き、季節物その他の収納に便利♪ 2室に面したバルコニーは、ゆとりの広さ♪ 家事動線を考えられた間取り♪ カースペース3台♪ スーパー、コンビニ、ドラッグストア、ホームセンター至近♪ |
| 備考 | 隅切有/日影制限有/高さ最高限度有/敷地面積最低限度有/宅地造成工事規制区域/景観法/建築基準法第22条区域 |
| 採光面 | 南 | 構造/階数 | 木造/地上2階建 |
|---|---|---|---|
| 建ぺい率 | 50(%) | 容積率 | 100(%) |
| 駐車場 | 有 | 現況/引渡し | 空家/相談 |
| 土地権利 | 所有権 | 私道負担面積 | - |
| 接道状況 | 接道: 北 12.2m 公道 道路幅: 4.5m 接道: 南 2.4m 公道 道路幅: 4.5m |
用途地域 |
第一種低層住居専用地域
|
| セットバック | - | 法令上の制限 | 隅切有/日影制限有/高さ最高限度有/敷地面積最低限度有/宅地造成工事規制区域/景観法/宅地造成工事規制区域/景観法/建築基準法第22条区域 |
| 地目 | 宅地 | 地勢 | |
| 建築確認番号 | 都市計画 | 市街化区域 | |
| 取引態様 | 仲介 | ||
| 情報更新日 | 2025年12月10日 | 次回更新日 | 2025年12月24日 |
| 小学校区 | 秦野市立西小学校 (神奈川県秦野市) この学区の他の物件を見る |
中学校区 | 西中学校 (神奈川県秦野市) この学区の他の物件を見る |
|---|
| 価格 | 万円 | ||
|---|---|---|---|
| 年利率 | % |
||
| ボーナス払い | 返済年数 | ||
| 頭金 | 直接入力する | 万円 | |

毎月のご返済額 |
ボーナス(×年2回) |
物件価格2,880万円 |
![]() |
![]() |
秦野市堀西
2880万円〜2980万円 |
渋沢駅徒歩20分♪駅バス2分も♪
両面道路♪
(設計/建設)住宅性能評価書付♪
全室収納付♪2WAYバルコニー♪
カースペース3台♪
買物施設至近♪