秦野市堀西第24 2号棟 神奈川県秦野市堀西 |2,480万円の新築一戸建て|株式会社ダイトー建設不動産
| 価格 | 2,480万円 ![]() |
||||
|---|---|---|---|---|---|
| 所在地 | 神奈川県秦野市堀西
この地域周辺の物件を見る |
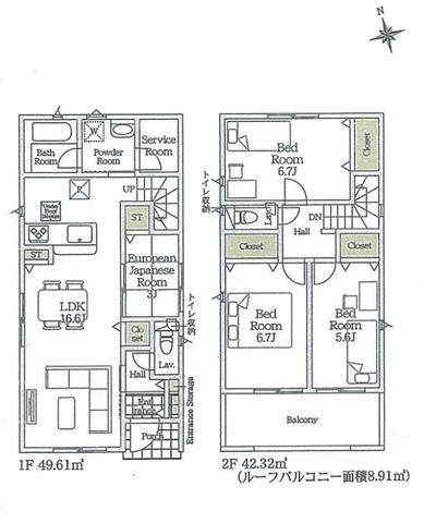
土地面積 | 136.05m² (41.15坪) | 建物面積 | 91.93u |
| 築年月 | 2026年5月築 | 間取り | 4SLDK (LDK16.6/和室3/S/洋室6.7/洋室6.7/洋室5.6) | ||
| 交通 |
小田急小田原線 渋沢 徒歩19分
小田急小田原線 渋沢 徒歩18分 |
||||
| 特徴 |
|
|---|---|
| セールスコメント | 渋沢駅徒歩19分、通勤通学に便利♪ 南西向き、陽当たり通風良好な4SLDK♪ 続和室との広々LDK♪ 家事動線を考えらえた間取り♪ 雨でも安心、ルーフバルコニー♪ 2室に面したバルコニーは、ゆとりの広さ♪ 家族の絆が深まる、リビング階段♪ カースペース2台♪ 小中学校に程近く、子育てに優しい住環境♪ |
| 備考 | 準防火地域/日影制限有/敷地面積最低限度有/宅地造成工事規制区域/景観法/道路斜線制限/隣地斜線制限 1号棟との協定地有り |
| 採光面 | 南西 | 構造/階数 | 木造/地上2階建 |
|---|---|---|---|
| 建ぺい率 | 60(%) | 容積率 | 160(%) |
| 駐車場 | 有 | 現況/引渡し | -/相談 |
| 土地権利 | 所有権 | 私道負担面積 | - |
| 接道状況 | 接道: 東南 3m 公道 道路幅: 4m | 用途地域 |
第一種中高層住居専用地域
|
| セットバック | - | 法令上の制限 | 準防火地域/日影制限有/敷地面積最低限度有/宅地造成工事規制区域/景観法/道路斜線制限/隣地斜線制限/1号棟との協定地有り |
| 地目 | 宅地 | 地勢 | |
| 建築確認番号 | 第KBI-SGM25-10-5626号 | 都市計画 | 市街化区域 |
| 取引態様 | 仲介 | ||
| 情報更新日 | 2026年05月21日 | 次回更新日 | 2026年06月04日 |
| 小学校区 | 秦野市立西小学校 (神奈川県秦野市) この学区の他の物件を見る |
中学校区 | 西中学校 (神奈川県秦野市) この学区の他の物件を見る |
|---|
| 価格 | 万円 | ||
|---|---|---|---|
| 年利率 | % |
||
| ボーナス払い | 返済年数 | ||
| 頭金 | 直接入力する | 万円 | |

毎月のご返済額 |
ボーナス(×年2回) |
物件価格2,480万円 |
![]() |
![]() |
秦野市堀西
2480万円〜3080万円 |
渋沢駅徒歩19分♪
南西向き陽当たり通風良好な4SLDK♪
続和室との広々LDK♪
2wayルーフバルコニー♪
リビング階段♪
小中学校に程近い♪