小田原市早川2丁目 神奈川県小田原市早川2丁目|2,980万円の中古一戸建て|株式会社ダイトー建設不動産
| 価格 | 2,980万円 ![]() |
||||
|---|---|---|---|---|---|
| 所在地 | 神奈川県小田原市早川2丁目
この地域周辺の物件を見る |
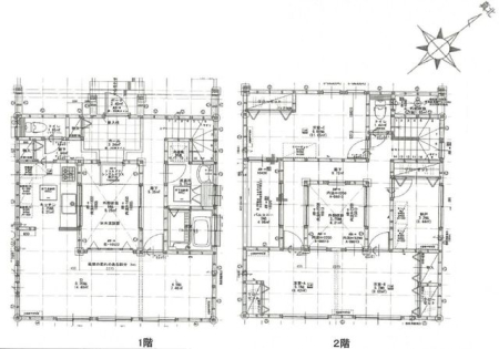
土地面積 | 118.8m² (35.93坪) | 建物面積 | 104.75u |
| 築年月 | 2008年9月築 | 間取り | 2SLDK (LDK17/洋室10.3/洋室6.6/S3.2) | ||
| 交通 |
箱根登山鉄道 箱根板橋 徒歩5分
JR東海道本線 早川 徒歩10分 |
||||
| 特徴 |
|
|---|---|
| セールスコメント | 箱根板橋駅徒歩5分、通勤通学に便利♪ 箱根登山線、東海道線、2沿線利用可♪ 中庭付き2SLDK♪ 3面採光17帖のLDK、自然光が入り込む中庭♪ 南東側隣接地現況駐車場、陽当たり通風良好♪ 南西向き2WAYバルコニー♪ 全居室収納付き、季節物その他の収納に便利♪ 駐車スペース3台♪ スーパー、コンビニ、ドラッグストア、ホームセンター至近、買い物に便利♪ 小学校、公園に程近く、子育てに優しい住環境♪ *営業時間【9:30〜20:30】 年中無休(年末年始除く) *お仕事のお休みが平日、土日祝日、不定休でも、ご希望の日時にてご案内致します *お車でお越しの場合、当社駐車場17台分完備しております 安心してお越しください *電車でお越しの場合、小田急線/栢山駅徒歩4分またはスタッフが送迎致します *お電話でお問い合わせはTEL:0120-76-0338 (通話料無料) |
| 備考 | 3LDKへ変更可能 現況有形有姿、契約不適合免責 測量図の交付をもって境界標明示 準防火地域/日影制限有/宅地造成工事規制区域/景観法/道路斜線制限/隣地斜線制限 小田原市第2種高度地区 |
| 採光面 | 南西 | 構造/階数 | 木造/地上2階建 |
|---|---|---|---|
| 建ぺい率 | 60(%) | 容積率 | 200(%) |
| 駐車場 | 有 | 現況/引渡し | 居住中/相談 |
| 土地権利 | 所有権 | 私道負担面積 | - |
| 接道状況 | 接道: 北西 8.5m 公道 道路幅: 12m | 用途地域 |
第一種住居地域
|
| セットバック | - | 法令上の制限 | 準防火地域/日影制限有/宅地造成工事規制区域/景観法/道路斜線制限/隣地斜線制限/小田原市第2種高度地区 |
| 地目 | 宅地 | 地勢 | |
| 建築確認番号 | 都市計画 | 市街化区域 | |
| 取引態様 | 専任媒介 | ||
| 情報更新日 | 2026年05月22日 | 次回更新日 | 2026年06月05日 |
| 小学校区 | 小田原市立早川小学校 (神奈川県小田原市) この学区の他の物件を見る |
中学校区 | 城南中学校 (神奈川県小田原市) この学区の他の物件を見る |
|---|
| 価格 | 万円 | ||
|---|---|---|---|
| 年利率 | % |
||
| ボーナス払い | 返済年数 | ||
| 頭金 | 直接入力する | 万円 | |

毎月のご返済額 |
ボーナス(×年2回) |
物件価格2,980万円 |
箱根板橋駅徒歩5分♪
2沿線利用可♪
2SLDK♪
南西向きバルコニー♪
全居室収納付き♪
駐車スペース3台♪
買物施設至近♪
小学校に程近い♪