松田町松田惣領第25 1号棟 神奈川県足柄上郡松田町松田惣領 |2,180万円の新築一戸建て|株式会社ダイトー建設不動産
| 価格 | 2,180万円 ![]() |
||||
|---|---|---|---|---|---|
| 所在地 | 神奈川県足柄上郡松田町松田惣領
この地域周辺の物件を見る |
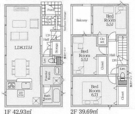
土地面積 | 123.19m² (37.26坪) | 建物面積 | 82.62u |
| 築年月 | 2026年2月築 | 間取り | 3LDK (LDK17.5/洋室6.7/洋室5.5/洋室5.5) | ||
| 交通 |
小田急小田原線 新松田 徒歩18分
JR御殿場線 松田 徒歩19分 |
||||
| 特徴 |
|
|---|---|
| セールスコメント | 新松田駅徒歩18分♪ 全居室収納付き3LDK、季節物その他の収納に便利♪ 2F全居室2面採光、陽当たり通風良好♪ ユニットバス、換気暖房乾燥機付き♪ 会話が弾むカウンターキッチン♪ 急な雨でも安心、ルーフバルコニー♪ 駐車スペース2台♪ 公園至近、緑豊かな住宅街、子育てに優しい住環境♪ *営業時間【9:30〜20:30】 年中無休(年末年始除く) *お仕事のお休みが平日、土日祝日、不定休でも、ご希望の日時にてご案内致します *お車でお越しの場合、当社駐車場17台分完備しております 安心してお越しください *電車でお越しの場合、小田急線/栢山駅徒歩4分またはスタッフが送迎致します *お電話でお問い合わせはTEL:0120-76-0338 (通話料無料) |
| 備考 | 日影制限有/宅地造成工事規制区域/建築基準22条指定/道路斜線制限/隣地斜線制限 |
| 採光面 | 南西 | 構造/階数 | 木造/地上2階建 |
|---|---|---|---|
| 建ぺい率 | 60(%) | 容積率 | 182(%) |
| 駐車場 | 有 | 現況/引渡し | 空家/相談 |
| 土地権利 | 所有権 | 私道負担面積 | - |
| 接道状況 | 接道: 北西 9.3m 公道 道路幅: 4.5m | 用途地域 |
第一種住居地域
|
| セットバック | - | 法令上の制限 | 日影制限有/宅地造成工事規制区域/建築基準22条指定/道路斜線制限/隣地斜線制限 |
| 地目 | 宅地 | 地勢 | 0 |
| 建築確認番号 | 0 | 都市計画 | 市街化区域 |
| 取引態様 | 仲介 | ||
| 情報更新日 | 2026年04月27日 | 次回更新日 | 2026年05月11日 |
| 小学校区 | 松田町立松田小学校 (神奈川県足柄上郡松田町) この学区の他の物件を見る |
中学校区 | 松田中学校 (神奈川県足柄上郡松田町) この学区の他の物件を見る |
|---|
| 価格 | 万円 | ||
|---|---|---|---|
| 年利率 | % |
||
| ボーナス払い | 返済年数 | ||
| 頭金 | 直接入力する | 万円 | |

毎月のご返済額 |
ボーナス(×年2回) |
物件価格2,180万円 |
![]() |
![]() |
足柄上郡松田町松田惣領
1980万円〜2680万円 |
新松田駅徒歩18分♪
全居室収納付き3LDK♪
2F全居室2面採光♪
ユニットバス、換気暖房乾燥機付き♪
ルーフバルコニー♪
駐車スペース2台♪